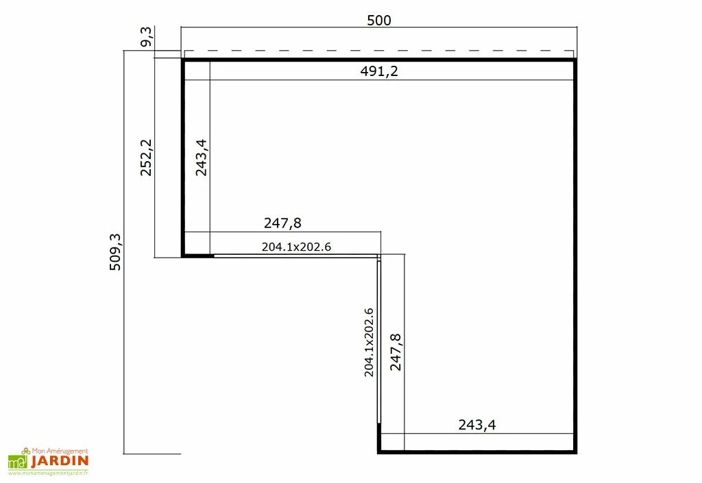
Original, ce studio de jardin en angle offre une surface intérieure de 17,9 m², idéale pour vous créer un véritable bureau dans le jardin, totalement indépendant. Il possède une surface totale de plus de 27 m² grâce à des dimensions hors tout de 5,20 m de longueur et de largeur et de 2,51 m de hauteur.
Ce bureau de jardin doit son look moderne à ses grandes baies vitrées, à son toit plat et à l’aluminium gris anthracite utilisé pour la protection des angles et pour le cadre des fenêtres. Le double vitrage des baies vitrées et l’épaisseur des murs de 44 mm apportent une bonne isolation à l’abri, vous permettant de le rendre habitable.
La structure du studio de jardin habitable
Le chalet est constitué de madriers en bois à emboiter les uns avec les autres, facilitant ainsi le montage. Ils possèdent une épaisseur de 44 mm. Le bois utilisé pour la conception de l’abri est de l’épicéa brut. Il sera donc nécessaire de lui appliquer un traitement fongicide et insecticide pour le protéger contre les agressions extérieures.
La toiture plate du chalet en bois vient renforcer son design contemporain. Elle bénéficie d’une légère pente de 1,3° qui permet d’évacuer les eaux de pluie. Le toit constitué de voliges de 18 mm d’épaisseur est couvert d’un feutre bitumé (il vous faudra prévoir une couverture définitive pour assurer la bonne étanchéité du toit sur le long terme).
Le plancher est inclus avec l’abri et ses lambourdes sont traitées.
Les fenêtres du bureau de jardin
Les deux baies vitrées coulissantes mesurent 204,1 x 202,6 cm (l,h) et sont équipées de double vitrage 4/6/4 mm. Le cadre est en aluminium gris anthracite. Le double vitrage de 14 mm vous permet de réaliser des économies d’énergie en réduisant l’utilisation du chauffage en hiver et en gardant la fraicheur en été.
Le profil de châssis épais et les cadres collés apportent une stabilité et une solidité supplémentaires aux baies vitrées. L’ouverture et la fermeture sont ainsi faciles et silencieuses. Un système de verrouillage permet de sécuriser l’intérieur de l’abri.
Ce studio de jardin habitable est livré en kit, avec un manuel détaillant le montage pas à pas. La garantie est de 5 ans.
Important : une isolation supplémentaire des murs sera nécessaire pour une utilisation à l’année.















Avis
Il n’y a pas encore d’avis.